Van der Straaten Makelaardij
Van der Straaten Makelaardij
Onder optie:Buiten-Inne 11, 6021 PN Budel - Foto
Onder optie
+6

Buiten-Inne 11 6021 PN Budel € 1.000,- /mnd

  • Kantoor
  • Bouwjaar 1998
  • 1.175 m² perceeloppervlakte
  • 69 m² vloeroppervlakte

Beschrijving

KANTOORRUIMTE , GELEGEN AAN DE RAND VAN HET BEDRIJVENTERREIN 'MEEMORTEL'.

OMSCHRIJVING:
Deze bedrijfsruimte is gelegen aan de rand van het bedrijventerrein 'Meemortel' aan het Buiten-Inne 11 in Budel.
Uitstekende ligging, op enkele autominuten gelegen van de A2 Eindhoven-Maastricht en de grens met België.

Bedrijventerrein Meemortel is een kleinschalig gemengd bedrijventerreinen vlakbij Kempen Airport. Het betreft gemengde bedrijvigheid, industrieel en handelsdoeleinden.

KENMERKEN:

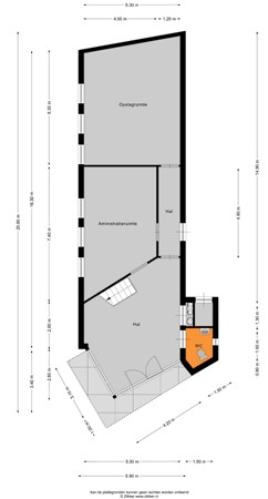
BEGANE GROND:
- Entree met tegelvloer en een vide
- Kantoor 1: oppervlakte ca. 24 m²
- Kantoor 2: oppervlakte ca. 35 m²
- Kantoorruimte met marmoleumvloer
- Toiletruimte
- Meterkast (6 groepen + aardlekschakelaar)

VERDIEPING:
- Via trap met bordes naar de vide
- Pantry, met Remeha Avanta HR combiketel (2023)
- Kantoor: oppervlakte ca. 69 m²
- Kantoorruimte met marmoleumvloer

PARKEREN:
Voor en naast het object liggen meerdere parkeerplaatsen, welke zijn verhard met klinkers.
Verder zijn er parkeermogelijkheden op de openbare weg.

ALGEMEEN:
- De huurprijs bedraagt € 1.000,-- per maand (€ 12.000,-- per jaar), exclusief 21% BTW
- Volledig voorzien van aluminium kozijnen en dubbele beglazing (folie)
- Systeemplafonds met inbouwverlichting
- Zonnepanelen (ter overname (2024 / 24 stuks, ca 9.840 Wp)

HUURTERMIJN EN OPZEGGING
Een minimale huurtermijn bedraagt van 2 jaar. Opzegtermijn is 12 maanden.

HUURPRIJSAANPASSING
De huurprijs zal jaarlijks, op basis van de wijziging van het maandprijs-indexcijfer volgens de consumentenprijsindex (CPI) reeks CPI-Alle Huishoudens (2015 = 100), gepubliceerd door het Centraal Bureau voor de Statistiek (CBS) worden aangepast.

BTW
Er is sprake van een met BTW belaste verhuur. De huurverplichting moet worden voldaan per vooruitbetaling per maand.

ZEKERHEIDSSTELLING
Huurder verstrekt aan verhuurder voor oplevering van het gehuurde een bankgarantie ter grootte van minimaal drie maanden huurverplichting.

AANVAARDING
Op korte termijn mogelijk.

Interesse of heeft u vragen, neem dan contact met ons op? De verhuurder staat open voor een gesprek.

Kaart

Kenmerken

Overdracht

Referentienummer
00188
Huurprijs
€ 1.000,- per maand
Inrichting
Niet gestoffeerd
Inrichting
Niet gemeubileerd
Status
Onder optie
Aanvaarding
In overleg
Aangeboden sinds
Vrijdag 12 september 2025
Laatste wijziging
Vrijdag 3 oktober 2025

Bouw

Type object
Kantoor
Soort bouw
Bestaande bouw
Bouwperiode
1998

Oppervlaktes en inhoud

Perceeloppervlakte
1.175 m²
VVO
69 m²
In units vanaf
24 m²

Indeling

Aantal bouwlagen
2

Locatie

Ligging
Aan rustige weg
Bedrijventerrein
Lokale voorzieningen
Restaurant op 2000 meter tot 3000 meter
Bereikbaarheid
Treinstation op 5000 meter of meer
Afrit van de snelweg op 5000 meter of meer

Kadastrale gegevens

Kadastrale aanduiding
Cranendonck L 1091
Perceeloppervlakte
1.175 m²
Omvang
Geheel perceel
Eigendomsituatie
Eigen grond

Media

Foto's

Plattegronden