Van der Straaten Makelaardij
Van der Straaten Makelaardij
Onder bod:Rozenstraat 15, 6021 BA Budel - Foto
Onder bod
+26

Rozenstraat 15 6021 BA Budel € 350.000,- k.k.

  • Woonhuis
  • 4 kamers
  • 3 slaapkamers
  • 1 badkamers
  • Bouwjaar 1966
  • 285 m² perceeloppervlakte
  • 101 m² gebruiksoppervlakte
  • C Energielabel C

Beschrijving

GELEGEN AAN EEN RUSTIGE WOONSTRAAT, EEN OP TE FRISSEN, HALFVRIJSTAAND WOONHUIS MET GROTE GARAGE EN VRIJE TUIN.

Bouwjaar: 1966. Perceel: 285 m². Inhoud ca.: 441 m³. Woonopp.: ca. 101 m².

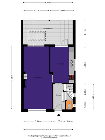
Begane grond:
Via een hardhouten voordeur toegang tot de entree, met een tegelvloer, krabwerk wanden en een schroten plafond. Meterkast (o.a. 6 groepen + krachtstroom + 2x aardlekschakelaar). Onder de trapopgang bevindt zich een verdiepte kelderkast, welke volledig is betegeld. Natuurlijke ventilatie middels een raampje.
Via een trapje naar een bordes waar het toilet is gelegen. Gedeeltelijk betegeld toilet met een stucwerk plafond. Voorzien van een duoblok, een fonteintje en een raampje.

Vanuit de entree met een deur naar de eetkeuken. Met een tegelvloer, granol wanden en een sierbalken plafond. De eiken keukeninrichting is voorzien van een dubbele spoelbak, een keramische kookplaat, een afzuigkap, een elektrische oven en een koelkast. Zicht op de brede en diepe oprit via een houten raamkozijn met dubbele beglazing en een rolluik. Via een terrasdeur met dubbele beglazing en een rolluik toegang tot het overdekt terras en de tuin.

Via een deur met glas-in-roeden naar de woonkamer, met een tegelvloer, spachtelputz wanden en een stucwerk plafond. Met een schouw met een sfeervolle openhaard. Zowel aan de voor- als achterzijde een groot houten raamkozijn met dubbele beglazing en rolluiken. Aan de achterzijde een vrij zicht op de tuin en kerktoren van Budel.

1e Verdieping:
Vanuit de entree met een, met vloerbedekking beklede trap, met bordes, naar de overloop, met vloerbedekking, granol wanden en een schroten plafond. Daglicht middels een kunststof raamkozijn (draai-/kiep) met dubbele beglazing in de zijgevel.

Slaapkamer, gelegen aan de voorzijde, met vloerbedekking, behangen wanden en een schroten plafond. Voorzien van een praktische muurkast en een tweetal kunststof raamkozijnen (draai-/kiep) met dubbele beglazing.
Twee slaapkamers gelegen aan de achterzijde, met vloerbedekking, behangen wanden en een schroten plafond. De grootste slaapkamer heeft een muurkast en een 'Daikin' wandairco (koelen/verwarmen). Met een tweetal kunststof raamkozijnen (draai-/kiep) met dubbele beglazing en rolluiken. De andere slaapkamer heeft ook een kunststof raamkozijn (draai-/kiep) en dubbele beglazing.

Op de overloop bevindt zich een separate, volledig betegelde doucheruimte met een stucwerk plafond met inbouwspots. Voorzien van een douchecabine met thermostaatkraan. Natuurlijke ventilatie middels een kunststof raamkozijn (draai-/kiep) met dubbele beglazing.
De badkamer heeft een lichte tegelvloer, volledig licht betegelde wanden en een schroten plafond. Voorzien van een 2e toilet, een ligbad en een wastafel. Natuurlijke ventilatie middels een kunststof raamkozijn (draai-/kiep) met dubbele beglazing.

2e Verdieping:
Vanuit de overloop met een vlizotrap naar een grote en hoge zolderruimte (houten verdiepingsvloer) met een nageïsoleerd dak. Hier bevindt zich de Remeha Avanta HR combiketel (2015).

Buiten:
Vanaf de diepe en brede oprit via een, op afstand te bedienen stalen kantelpoort toegang tot de grote vrijstaande garage van ca. 33 m². Met een betonvloer, spouwmuren en een tweetal kunststof raamkozijnen en -deur met dubbele beglazing. Met een wastafel. Via een poort tussen de woning en de garage is de achtertuin bereikbaar, welke volledig is omheind en veel privacy biedt.
Direct aan de woning bevindt zich over de gehele breedte een riante terrasoverkapping van 20 m². Met een tegelvloer, een lichtkoepel en diverse inbouwspots. De tuin, met zicht op de kerktoren, heeft o.a. een gazon en aangeplante borders met volwassen beplanting.

Bijzonderheden:
- Woning met houten- en kunststof kozijnen, dubbele beglazing en diverse rolluiken
- De spouwmuren en het dak van de woning zijn nageïsoleerd
- Drie ruimere slaapkamers, een badkamer en een aparte doucheruimte
- Verrassend grote garage (ca. 8,25 m. x 4,00 m.) en privacy biedende achtertuin
- Ruime parkeergelegenheid op de eigen oprit en op de openbare weg
- Energielabel van deze woning is C
- Gelegen nabij centrum en uitvalswegen naar A2 Eindhoven-Maastricht en NS station

Kaart

Kenmerken

Overdracht

Referentienummer
00224
Vraagprijs
€ 350.000,- k.k.
Inrichting
Niet gestoffeerd
Inrichting
Niet gemeubileerd
Status
Onder bod
Aanvaarding
In overleg
Aangeboden sinds
Vrijdag 16 januari 2026
Laatste wijziging
Woensdag 4 februari 2026

Bouw

Type object
Woonhuis, eengezinswoning, twee onder een kap woning
Soort bouw
Bestaande bouw
Bouwperiode
1966
Dakbedekking
Dakpannen
Type dak
Zadeldak
Isolatievormen
Dakisolatie
Muurisolatie

Oppervlaktes en inhoud

Perceeloppervlakte
285 m²
Woonoppervlakte
101 m²
Inhoud
441 m³
Oppervlakte overige inpandige ruimten
24 m²
Oppervlakte externe bergruimte
33 m²
Oppervlakte gebouwgebonden buitenruimte
20 m²

Indeling

Aantal bouwlagen
3
Aantal kamers
4 (waarvan 3 slaapkamers)
Aantal badkamers
1 (en 1 apart toilet)

Locatie

Ligging
Aan rustige weg
In centrum
Nabij school

Tuin

Type
Achtertuin
Hoofdtuin
Ja
Oriëntering
Noord west
Heeft een achterom
Ja
Tuin 2 - Type
Voortuin
Tuin 2 - Oriëntering
Zuidoost
Tuin 2 - Staat
Normaal

Energieverbruik

Energielabel
C

CV ketel

CV ketel
Remeha Avanta HR combiketel
Warmtebron
Gas
Bouwjaar
2015
Combiketel
Ja
Eigendom
Eigendom

Uitrusting

Warm water
CV-ketel
Verwarmingssysteem
Centrale verwarming
Open haard
Keukenvoorzieningen
Inbouwapparatuur
Badkamervoorzieningen
Ligbad
Toilet
Wastafel
Parkeergelegenheid
Vrijstaande stenen garage
Heeft airco
Ja
Heeft kabel-tv
Ja
Heeft een open haard
Ja
Tuin aanwezig
Ja
Heeft een garage
Ja
Telefoonaansluiting aanwezig
Ja
Beschikt over een internetverbinding
Ja
Heeft rolluiken
Ja

Kadastrale gegevens

Kadastrale aanduiding
Budel F 2776
Perceeloppervlakte
285 m²
Omvang
Geheel perceel
Eigendomsituatie
Eigen grond

Brochure(s) en overige bijlagen

Rozenstraat 15, 6021 BA BUDEL (2) Download