Van der Straaten Makelaardij
Van der Straaten Makelaardij
Verhuurd:Grootschoterweg 113E, 6023 AR Budel-Schoot - Foto
Verhuurd
+10

Grootschoterweg 113E 6023 AR Budel-Schoot

  • Appartement
  • 2 kamers
  • 1 slaapkamer(s)
  • 1 badkamer
  • Bouwjaar 2007
  • 80 m² gebruiksoppervlakte
  • A Energielabel A

Beschrijving

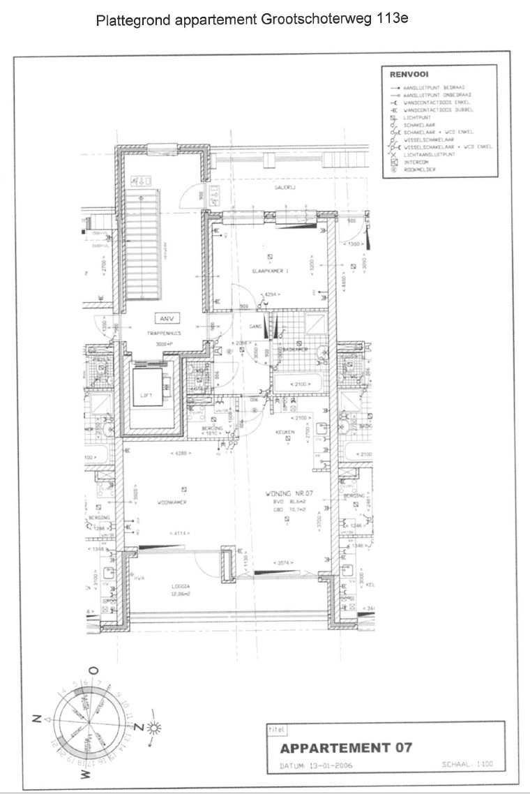
GELEGEN IN HET CENTRUM, EEN GOED ONDERHOUDEN APPARTEMENT OP DE 2E VERDIEPING, MET EEN BERGING EN CARPORT.

Bouwjaar: 2007. Woonoppervlakte: ca. 80 m².

Begane grond:
Central entree met een bellentableau met intercom en brievenbussen.
Middels een doorgang toegang tot het achterterrein, met een privé parkeerplaats welke is gelegen onder een carport. Aangrenzend ligt er een ruime berging met elektra en water.

Via de hoofdingang met een trap of een liftinstallatie naar de 2e etage.

2e Etage:
Het gehele appartement is voorzien van een laminaatvloer, stucwerk wanden en -plafonds.

Via de ruime hal toegang tot het appartement. Entree met een meterkast en een toilet. Vanuit de entree naar de slaapkamer, badkamer en keuken/woonkamer.

De ruime slaapkamer, ca. 4,30 m. x 3,20 m., is gelegen aan de achterzijde. Volledig betegelde badkamer met een douchecabine, een ligbad en een wastafel. De lichte keukeninrichting in een hoekopstelling is voorzien van een koelkast, een vaatwasser, een RVS combi-magnetron, een gaskookplaat en een RVS afzuigkap. In een praktische muurkast bevinden zich de aansluitingen voor de wasapparatuur en de HR combiketel.
De keuken staat in open verbinding met de woonkamer en heeft veel lichtinval en toegang tot een ruim balkon (ca. 12 m²) aan de voorzijde, welke plaats biedt aan een tuinset.

Bijzonderheden:
- Voorkeur gaat uit naar een langere huurtermijn met als doelgroep 65+
- De huurprijs is exclusief gas/water/elektra
- Het gebouw is optimaal geïsoleerd, hardhouten kozijnen (draai-/kiep) met dubbele beglazing
- De gehele verdieping is voorzien van een laminaatvloer, stucwerk wanden en -plafond
- Huisdieren (o.a. honden en katten) zijn niet toegestaan
- Het appartement heeft energielabel A
- De waarborgsom bedraagt twee maandhuren
- Indien u interesse heeft in dit appartement kunt u bij ons een inschrijfformulier opvragen!

Kaart

Kenmerken

Overdracht

Referentienummer
00212
Huurprijs
€ 1.050,- per maand (geïndexeerd)
Borg
€ 2.100,-
Inrichting
Niet gestoffeerd
Inrichting
Niet gemeubileerd
Status
Verhuurd
Aanvaarding
In overleg
Aangeboden sinds
Vrijdag 14 november 2025
Laatste wijziging
Vrijdag 19 december 2025

Bouw

Type object
Appartement, portiekflat
Woonlaag
2e woonlaag
Soort bouw
Bestaande bouw
Toegankelijkheid
Senioren
Bouwperiode
2007
Dakbedekking
Bitumen
Type dak
Platdak
Isolatievormen
Volledig geïsoleerd

Oppervlaktes en inhoud

Woonoppervlakte
80 m²
Inhoud
190 m³

Indeling

Aantal bouwlagen
2
Aantal kamers
2 (waarvan 1 slaapkamer)
Aantal badkamers
1 (en 1 apart toilet)

Locatie

Ligging
In centrum

Energieverbruik

Energielabel
A

CV ketel

Warmtebron
Gas
Combiketel
Ja
Eigendom
Eigendom

Uitrusting

Warm water
CV-ketel
Verwarmingssysteem
Centrale verwarming
Badkamervoorzieningen
Douche
Ligbad
Wastafel
Heeft kabel-tv
Ja
Heeft een lift
Ja
Telefoonaansluiting aanwezig
Ja
Beschikt over een internetverbinding
Ja
Heeft schuur/berging
Ja

Kadastrale gegevens

Kadastrale aanduiding

Media

Foto's

Plattegronden

Brochure(s) en overige bijlagen

Grootschoterweg 113-E, 6023 AR BUDEL-SCHOOT (2) Download